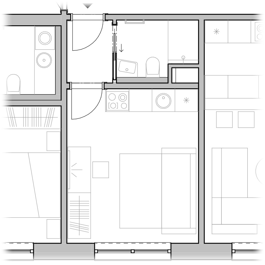
Apartmán 4
330 € / mes.
+ energie
s DPH

POLOHA APARTMÁNU
-
TypApartmán
-
KódA 5.4
-
Poschodie5. poschodie
-
Plocha18,17 m²
-
Počet miestností1
-
StavVoľné
| Miestnosť | Plocha |
|---|---|
| Predsieň | 1,98 m2 |
| Obývacia miestnosť | 13,12 m2 |
| Kúpeľňa | 2,95 m2 |